111 Matapuna Road, Horopito, Ruapehu

A slice of country paradise in Horopito

Imagine finding your country slice of paradise in the Ruapehu surrounds. This generously sized property offers an incredible opportunity to secure a flat, freehold section and create your dream home, lifestyle, or holiday retreat.

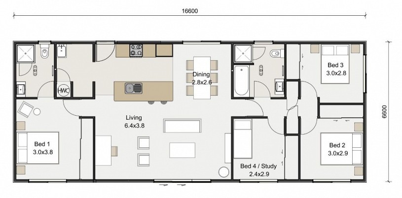
This four-bedroom, two-bathroom stylish plan has been designed with central living as the focus of the home.

Large sliding doors open up your living space to access the outdoor area with ease. Add a large deck and covered pergola and make this space the perfect entertainment zone whilst capturing the views of the snow-capped Mt Ruapehu.

Your master bedroom is privately at one end of the home with ensuite. Bedrooms two and three at the other end, as well as a smaller 4th bedroom or office space. This home is ideal for a growing family or those who enjoy having guests to stay.

This package also includes an allowance for:

  • Building Consent plans, council building consent application, fees, inspections & code of compliance certificate (CCC)
  • Delivery onto standard timber pile foundations
  • Smeg kitchen appliances – Oven, HOB, Rangehood & Dishwasher
  • Decks, landing and timber baseboards
  • 2x 25,000L water tanks
  • Heat pump
  • Geotechnical, wastewater and stormwater reports
  • Allowance has been made for a new septic system and stormwater drainage.
  • Allowance has also been made for power connection, as well as drainage & under floor plumbing

This inclusive House & Land Package gives you an opportunity to make your dreams a reality. So bring your ideas and enquire today!

What Keith Hay Homes can offer:

  • 85 years worth of building experience
  • Full project management
  • Fixed price contracts
  • Guaranteed completion with a personally backed warranty!

Feel free to chat with me if you think there might be other plan choices that could be a better fit for what you're looking for!

For more details contact Azrik Bowater, 027 700 4851, azrik.bowater@khh.co.nz

Keith Hay Homes reserve the right to withdraw or change any House and Land package without notice. Packages specify inclusions, are subject to availability of the land and the advertised price is an indication only. Keith Hay Homes will refer you to the listing agent to negotiate the price of the land. Site-specific engineering assessments will determine whether there will be any additional costs associated with the land. Any upgrades or changes to the floor plan may also incur additional costs. Images are an artist’s impression only.