115 Kereru Lane, Mangawhai, Kaipara

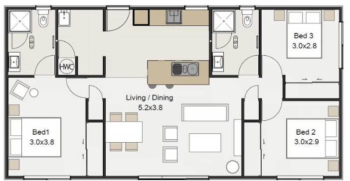
Introducing an exceptional house and land package located at Lot 2, 115 Kereru Lane, Kaiwaka. Nestled in a serene and picturesque setting, this property offers the perfect opportunity to build your dream home. With the Pre-Built Warkworth ‘Pavilion’ Showhome 3bedroom, 2-bathroom home design already in place, you can get started on transport and site works without any delays.

Key Features:

  • 3 spacious bedrooms, family bathroom, and master ensuite
  • Open-plan dining and living area – perfect for entertaining
  • Large sliding doors opening onto a covered external deck for seamless indoor/outdoor flow
  • Angled wing walls designed to provide privacy while maximising your views
  • Built to high-quality standards in our Warkworth yard and ready for immediate delivery
  • Picturesque Location: Enjoy the tranquility of rural living with stunning views of the surrounding countryside. With just a 15 minute drive to the nearby town of Mangawhai, you’ll have the best of both worlds—peaceful, country living while still being close to essential amenities, schools, and local services.
  • Ample Land Space: This sizable section offers room for outdoor activities, gardening, or even future extensions. It’s a blank canvas for you to design your own space and create the lifestyle you’ve always wanted.
  • Ideal for Families or Professionals: Whether you're a growing family or looking to enjoy your own private retreat, this property provides the ideal environment. The 3-bedroom design is perfect for those seeking comfort and convenience, with ample space for all.

Location Highlights:

Welcome to Mangawhai – one of Northland’s most sought-after lifestyle destinations.
Just 90 minutes from Auckland, Mangawhai offers the perfect blend of beach, boutique, and community.

  • Stunning beaches and surf breaks for swimming, kayaking, and fishing
  • Mangawhai Heads Estuary Walk – scenic trails and breathtaking coastal views
  • A vibrant village hub with cafes, boutique shops, and a weekend market
  • Excellent local schools and childcare options
  • Golf course, wineries, and artisan food producers nearby
  • A friendly, growing community that’s ideal for families, retirees, or weekend escapes

 This package includes:

  • Site Suitability reports
  • Building Consent
  • Smeg appliances – Oven, HOB, Dishwasher & Rangehood
  • 12m2 of timber decking plus rear landing
  • Steps, handrails & baseboards
  • Built in Warkworth & Delivered onto Standard timber pile foundations
  • Allowance has also been made for electric (20m allowance) and water tank, septic system, as well as stormwater & under floor plumbing

 Exclusions:

  • Driveways
  • Fencing
  • Landscaping
  • Garaging

 Keith Hay Homes also offers customers:

  • Show Homes open to view in Warkworth & Whangarei
  • Reduced construction timeframes with pre-consented & pre-built stock houses
  • Bridging finance for lenders with low equity on transportable homes
  • Local building yards (Warkworth) using LBP builders
  • NZ owned family business – celebrating 85 years this year!
  • Unique personal guarantee on all contracts from our managing director – protects deposits & completion is guaranteed!
  • Quality workmanship with manufacturer’s full warranties on materials

 Enquiries, please contact Tim on 027 700 4540

Keith Hay Homes reserve the right to withdraw or change any House and Land package without notice. Packages specify inclusions, are subject to availability of the land and the advertised price is an indication only. Keith Hay Homes will refer you to the listing agent to negotiate the price of the land. Site-specific engineering assessments will determine whether there will be any additional costs associated with the land. Any upgrades or changes to the floor plan may also incur additional costs. Images are an artist’s impression only.