68 Armitage Road, Wellsford, Rodney

Rural Bliss, City Convenience

Nestled in one of Wellsford’s most sought-after streets, this private 1,891 sqm section offers stunning views over the surrounding farmland. You’ll feel like you’re in the countryside yet still enjoy the convenience of being close to town.

Here’s your opportunity to build the home of your dreams, designed exactly the way you've always envisioned it.

Downsize: Perhaps you’re looking to downsize now that the kids have left home. If so, this property offers the perfect setting for a low-maintenance home that you can lock up and leave, ideal for those who enjoy traveling.

The vendor has plans and is eager to consider all offers. There’s flexibility regarding covenants on the site, and the vendor is happy to discuss these with serious buyers.

Keith Hay Homes Legacy Collection offers affordable practicality and is popular with first time homebuyers, and property investors. Our innovative "Legacy" homes are your perfect choice. This modern, yet affordable home has been designed for functionality and style.

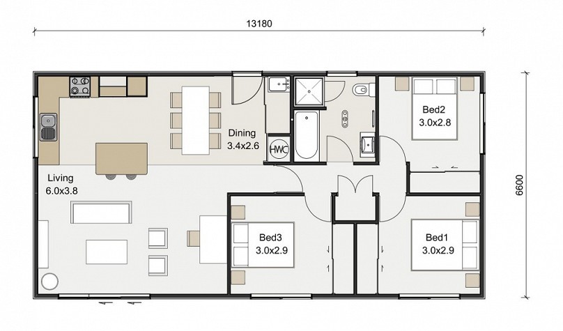
This sought-after design is ideal for a growing family. It features three good sized bedrooms, a spacious lounge and dining room and a separate bathroom and toilet. Step out from an open living concept Kitchen, living dining area onto a deck where you can enjoy the beautiful rural outlook.

Whether you are looking for a family home or a rental investment, this build is flexible and allows you the opportunity to personalise your home with our standard range of options to define the way you want to live.

The package includes:

  • Three Bedrooms & One Bathroom
  • Open plan Kitchen/ Living / Dining
  • Modern Kitchen with Smeg appliances - Oven, Stovetop, Rangehood & Dishwasher
  • Quality Methven fixtures and fittings
  • Double Glazed Joinery throughout
  • Rinnai Pro Series Heatpump
  • Front Door Landing with steps and handrail
  • 18m2 Deck with balustrade
  • SPC Flooring Upgrade
  • Mono Pitch Roof Line
  • Baseboards to surround foundations
  • House Delivery & standard foundations for proposed dwelling
  • Site service connections – Power, water, wastewater and storm water
  • Building Consent & Code of Compliance

What Keith Hay Homes can offer:

  • 85 years worth of building experience
  • Full project management
  • Fixed price contracts
  • Guaranteed completion with a personally backed warranty!

Keith Hay Homes have a large range of plans, as well as prebuilt options which can be built on this property.

This house & land package is based on a proposed subdivision that is yet to be submitted to council.

Keith Hay Homes: Hannah Jamieson 021 948 860

Maximise: Debbie Lee 0275 995 431

Keith Hay Homes reserve the right to withdraw or change any House and Land package without notice. Packages specify inclusions, are subject to availability of the land and the advertised price is an indication only. Keith Hay Homes will refer you to the listing agent to negotiate the price of the land. Site-specific engineering assessments will determine whether there will be any additional costs associated with the land. Any upgrades or changes to the floor plan may also incur additional costs. Images are an artist’s impression only.