Lot 5, Azimuth Road, Tairua, Coromandel

ESCAPE TO PARADISE! This is a rare opportunity to own a piece of paradise in the picturesque Coromandel. Azimuth Road, Tairua is an illustrious address near the area’s idyllic sand and surf beaches, and close to the centre of the town - with an architecturally designed Keith Hay Horizon home to complete the package!

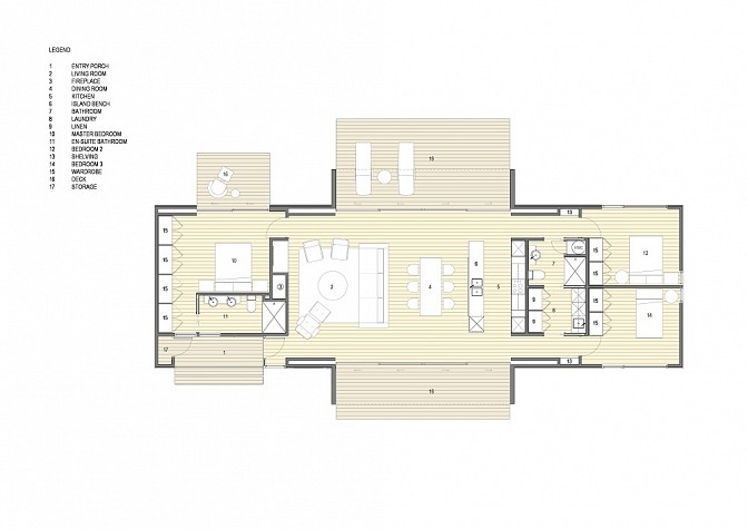
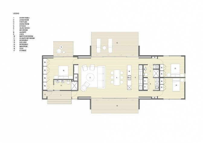
You’ll love the contemporary horizontal aesthetic and seamless central living zone which opens fully in two directions and separates the principal and secondary sleeping areas. Perfectly positioned on site to capture both the sun, the tree-lined landscape, and the sweeping ocean views.

The transparent living space has full height sliding glass walls which recess fully into pocket walls allowing the entire room to flow onto extensive partly covered decking. The master suite has ample wardrobe space, a generous en-suite with double shower and vanity basins. The two double bedrooms are accessed by individual foyers for privacy from the living zone. The bathroom and laundry layout interconnects and provides audio separation between the living and sleeping zones. Timber decks to give you a great indoor/outdoor flow.

Package includes allowances for Building Consent, geotechnical, wastewater, storm water reports & topographical survey. Standard piles (confirmation required from Geotech survey), with baseboards around the house. Allowance has also been made for a concrete parking area and drive, street crossing, site electrical, plumbing & drainage connections.

For more information call Alex Lishman 027 700 5779

Excludes: Service provider fees, Council Development Contributions. Images are an example only of a Horizon show home. 

Keith Hay Homes reserve the right to withdraw or change any House and Land package without notice. Packages specify inclusions, are subject to availability of the land and the advertised price is an indication only. Keith Hay Homes will refer you to the listing agent to negotiate the price of the land. Site-specific engineering assessments will determine whether there will be any additional costs associated with the land. Any upgrades or changes to the floor plan may also incur additional costs. Images are an artist’s impression only.