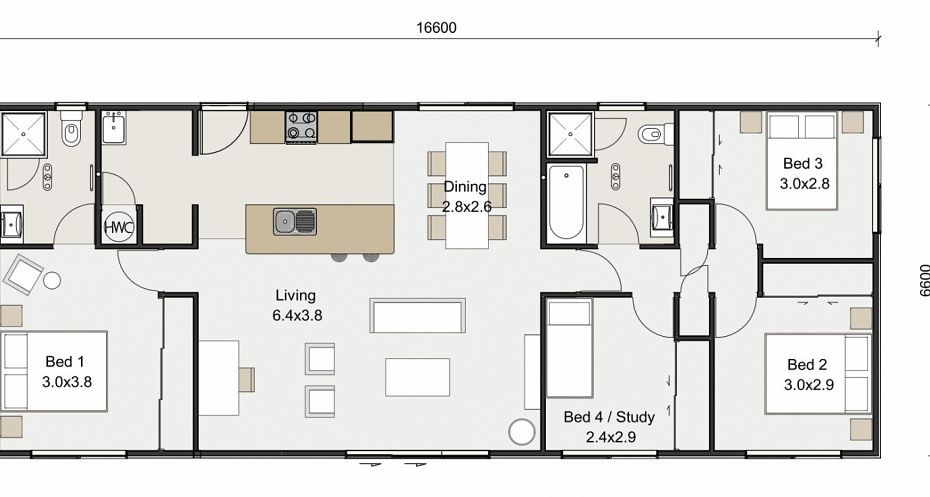
Side Boxed Monopitch, Christchurch 53938 (Under construction)

This 4 bedroom, 2 bathroom lovely side boxed monopitch house is currently under construction soon to be ready for your section. It comes complete with the following:

  • Side Boxed Monopitch upgrade
  • Seaspray zone upgrades with Colorsteel Maxx roof
  • Zone 3 insulation for Central Plateau
  • Very high wind zone
  • 2 phase electrical set up
  • Fully decorated with Resene paint to exterior and interior
  • Carpet throughout with vinyl to wet areas

 Optional extras:

  • Delivery onto standard foundations
  • Building and Resource consents
  • Site services, Council levy’s
  • Baseboards, decks, steps and rails

Please note: images shown are an artist impression only and may include extras not included with this home.

Ask our Christchurch team about a fixed price contract and full inclusions today (03) 349 9102

View here on Trade me