(Marlowe Plan) Lot 14, Bulls, Rangitikei

sold

LOT 14 NOW SOLD - PLEASE ASK ABOUT STAGE 2 OF OUR DEVELOPMENT

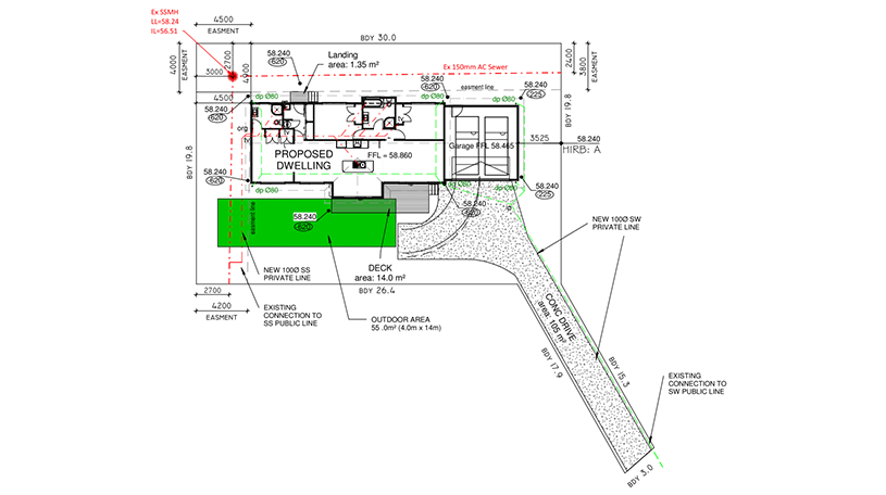
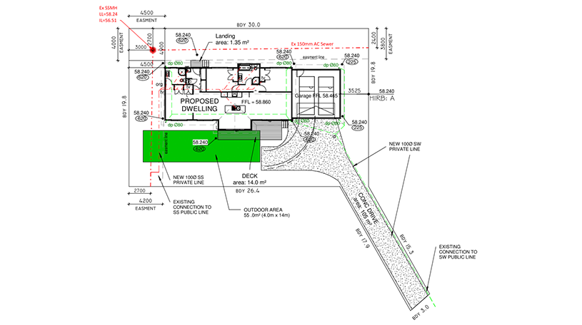
If you are looking for a brand new, modern home in a safe peaceful community then this house and land package, positioned in the quiet cul-de-sac of Walton Street, Bulls, is for you! Lot 14 features our 3-bedroom Marlowe plan with double internal garage is positioned with living North facing to make the most of this sunny section. This contemporary home is designed with entertaining in mind. The spacious kitchen, with Smeg appliances, is the centrally located hub of this home and features a nook area with cosy lounge and dining room on either side. Whether entertaining indoors or out, the large sliders create fantastic indoor/outdoor flow.

Bedrooms two and three share the large main bathroom. The master bedroom, with its own ensuite and generous double wardrobe that really completes this well-proportioned home. Internal access garaging for 2 cars and a separate laundry make this a stand-out plan.

Specified using only top-quality materials, you will be warm and dry with double glazed windows throughout, window dressings and a heat pump. To finish this package, a concrete driveway, letterbox, seeded grass and clothesline are all included in the price. Simply add your personal touch with your own decorating choices and make this your own.

You will enjoy living in this relaxing development within the fun and up and coming community of Bulls. For more information contact us today!

Download Specifications