(Horizon) 149b Torehape Road West, Kaihere , Hauraki District

This is the perfect setting to ignite your creativity and bring your vision to life at one of these two exclusive locations. With breathtaking 360-degree views, the stunning sunrises and sunsets are just the beginning of your experience, allowing you to observe life unfold around you.

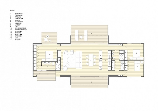
The design of this contemporary cube seamlessly blends a simple horizontal aesthetic with a well-defined layout, creating an inviting palette for easy living.

At the heart of the home, a central living zone opens fully in two directions, separating the principal and secondary sleeping areas. The covered external porch offers protected access to future garaging and the entry foyer. The transparent living space features full height sliding glass walls that recess into pocket walls, allowing the entire room to flow effortlessly onto extensive partly covered decking.

The luxurious master suite boasts a full wall of floor-to-ceiling wardrobes leading to a generous ensuite with double shower and vanity basins. The two double bedrooms are accessed through individual foyers, ensuring optimum privacy from the living area. The practical layout of the bathroom and laundry is interconnected, providing sensible acoustic separation between the living and sleeping zones.

Richly stained timber on the floors, decks, and exterior walls adds warmth and texture, exuding a sense of timeless quality. The thoughtful selection of materials, combined with high-performance building components, reflects a commitment to cost-effective operation and maintenance, ultimately achieving exceptional sustainability.

This package includes:

  • Geotech Report
  • Waste Water Report/TP58 report
  • Storm Water Report
  • Building Consent
  • Hip roof
  • Upgrade to Very High wind zone
  • Smeg appliances – Oven, HOB & Rangehood, and Dishwasher
  • Entry Porch, Front & Rear Decks
  • Steps, handrails & baseboards
  • Built on Standard timber pile foundations
  • Allowance has also been made for electric and water connections, as well as drainage & under floor plumbing
  • Delivery Ex yard onto standard timber piles.

Exclusions:

  • Driveways
  • Fencing
  • Landscaping
  • Garaging

Keith Hay Homes also offers customers:

  • Show Homes open to view in Hamilton, Drury & Te Puke at our construction yards.
  • Reduced construction timeframes with pre-consented & pre-built stock houses.
  • Bridging finance for lenders with low equity on transportable homes
  • NZ owned family business – celebrating 86 years this year!
  • Unique personal guarantee on all contracts from our managing director – protects deposits & completion is guaranteed!
  • Quality workmanship with manufacturer’s full warranties on materials

For Enquiries please contact Kyle on 027 700 2566 or kyle.pearce@khh.co.nz

Keith Hay Homes reserve the right to withdraw or change any House and Land package without notice. Packages specify inclusions, are subject to availability of the land and the advertised price is an indication only. Keith Hay Homes will refer you to the listing agent to negotiate the price of the land. Site-specific engineering assessments will determine whether there will be any additional costs associated with the land. Any upgrades or changes to the floor plan may also incur additional costs. Images are an artist’s impression only.